czego potrzebuję?
projekt modułowych domków kabinowych nagrodzony II miejscem w konkursie Cabin Ideas organizowanym przez UAP & Wojciech Masełkowski
rok
2017
zespół
Alicja Maculewicz
Seweryn Trzyna
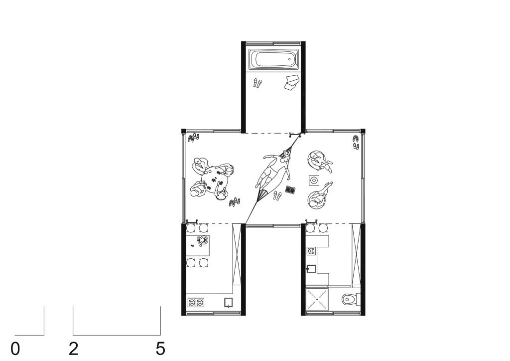
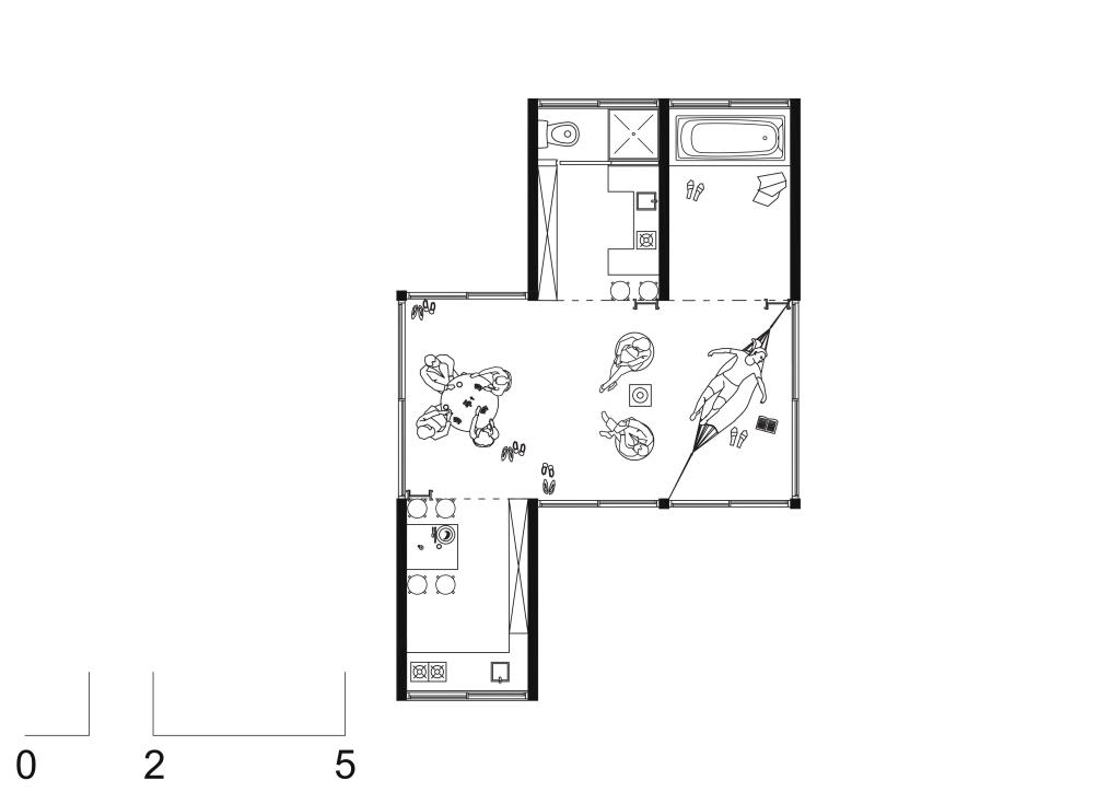
Zadaniem konkursowym było zaprojektowanie domku letniskowego, w którym będzie można wypocząć w przyjemnym wnętrzu i poczuć się w jedności z naturą. Projekt rozpoczęliśmy od wyliczenia rzeczy, które każdy posiada w domu, a które zapewniają nam wygodę. Tę listę ograniczyliśmy tylko do obiektów zapewniających nam komfort fizyczny, gdyż do odczuwania natury wystarczy jedynie minimum, a dla każdego będzie ono inne – jedni zrezygnują z kuchenki gazowej na rzecz ogromnej wanny w łazience, a niektórym do szczęścia potrzebny jest tylko hamak.









Naszym minimum jest kubatura 2×6 m z wyraźnym podziałem funkcjonalnym – łazienka, kuchnia i sypialnia oraz salon/loża.
Z podziału funkcjonalnego wynika także ten odpowiadający potrzebom człowieka – fizjologicznym, oraz wyższym, czy społecznym.
Loża może łączyć się z lożami w innych domkach, tworząc przytulny azyl dla całej rodziny lub ogromne struktury przywodzące na myśl środowiska bohem artystycznych.







